Nos avis clients
Nos avis clients
0
Réf : LMA10000092
Loué

Maison neuve 3 chambres, proche centre-ville !

Notre-Dame-de-Monts (85690)
CC*

A propos de ce bien

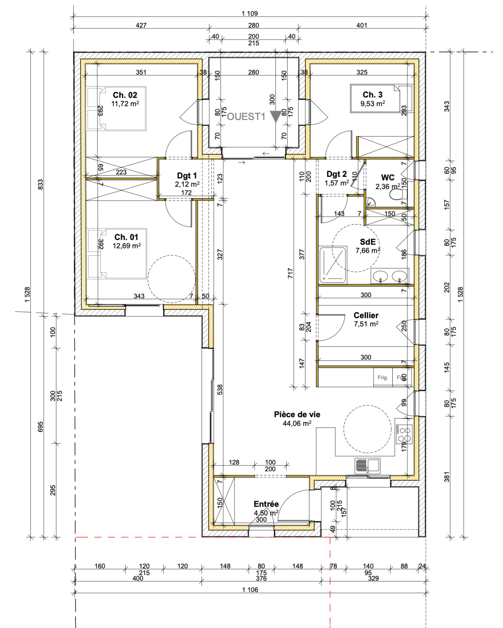
A LOUER ! Maison neuve en cours de finition livrée début juillet aux normes RT 2012 !

Située à 700 mètres du centre-ville, maison de plain-pied de plus 103 m² construite par des artisans locaux.

Elle vous offre une entrée ouverte avec placards, une belle pièce à vivre lumineuse avec cuisine ouverte aménagée et partiellement équipée (comprend : hotte, plaque de cuisson et évier), 3 chambres avec placards, WC séparés, salle d'eau, un grand cellier, une belle terrasse bois et un patio !

Visite uniquement après étude de dossier complet validé.

découvrir le bien

Descriptif du bien

TRAD_PAMPERO_Caracteristique Valeurs
Code postal 85690
Surface habitable (m²) 103,72 m²
surface terrain 355 m²
Surface loi Boutin (m²) 103,72 m²
Nombre de chambre(s) 3
Nombre de pièces 4
Meublé NON
Vue Cour intérieure
TRAD_PAMPERO_Caracteristique Valeurs
Nb de salle d'eau 1
Cuisine Américaine
Type de cuisine SEMI-EQUIPEE
Mode de chauffage Pompe à chaleur
Type de chauffage Au sol
Format de chauffage Individuel
Interphone NON
Visiophone NON
Balcon NON
Loggia NON
Terrasse OUI
Cave NON
Exposition Sud-Ouest
Année de construction 2023
Quartier CENTRE-VILLE
TRAD_PAMPERO_Caracteristique Valeurs
Dont état des lieux 309 €
Dépôt de garantie TTC 1 150 €
  • Commerces et santé
  • Loisirs
  • Ecoles
  • Transports
  • Pratique

* CC : Charges comprises

Ces biens peuvent vous intéresser